2 Bedroom Apartment For Sale In One Cotroceni Park
The plans and images presented are for information purposes only. Please read the disclaimer here.
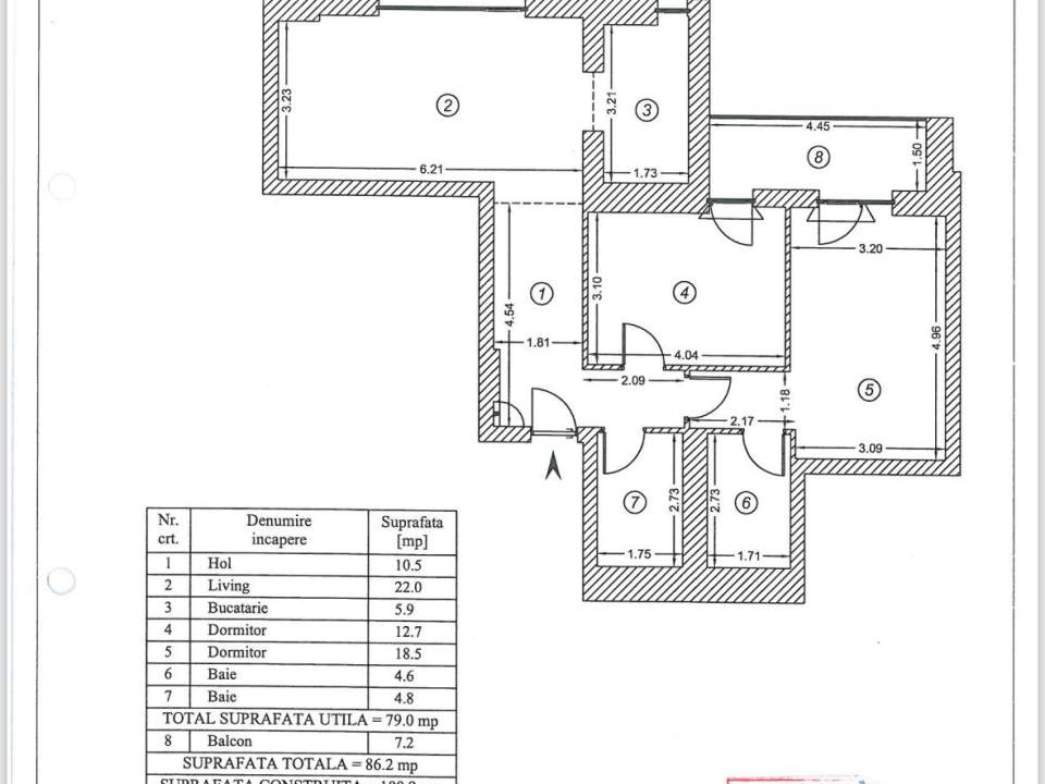
Apartment Details
Advice on financing the purchase with Skia Financial Services
Division specialized in financial services, is dedicated to your personal transformation and offers you the necessary support to find the best credit options.
Use the loan calculator to identify the most advantageous solution for your budget and reach your full potential. Send us the completed information so that a financial consultant with over 15 years of experience can guide you further towards the optimal financing solution.

One Cotroceni Park
Positioned within the main ring of the city, One Cotroceni Park is the only mixed-use development with subway access. The complex is well-connected with 6 subway stations and multiple bus&tram transportation lines, offering easy access to the city center or any other area of Bucharest, including Henri Coanda International Airport, Politehnica University or the Military Academy. The area assures access to multiple facilities and amenities: the Botanical Garden is just 10 minutes away, while the largest shopping center in Romania is in the immediate vicinity with numerous options for shopping, restaurants, cinema, and fitness.
With every innovative real estate development focusing on urban regeneration, Bucharest comes back to life. One United Properties’s vision is to continue to bring something new to the market, revitalizing abandoned areas, bringing together homes, offices, and commercial areas, integrating all of them in lively and organic communities with multiple benefits and minimal impact on the environment like One Cotroceni Park.


























